Vraagprijs

€ 650.000 k.k.

Kenmerken

Overdracht
StatusOnder bod
Prijs€ 650.000 Kosten koper
Aanvaardingin overleg
alle kenmerken
Refresh to make it work.
Aan de rand van het gezellige dorp Haren, een paar stappen verwijderd van de mooie natuur in de Oosterpolder, vind je deze vrijstaande woning met garage. Deze plezierig ingedeelde woning is gebouwd in 1990 en is gelegen op een perceel grond van 508 m². Bij de bouw is het huis geïsoleerd met vloer, muur- en dakisolatie, de beglazing is dubbel uitgevoerd. Het is dan ook gelabeld met een energielabel A.

Door de slaap-/ en badkamer op de begane grond heeft dit huis een levensloopbestendige indeling. De 3 ruime slaapkamers op de verdieping maken het tot een ideaal gezinshuis. De rondom gelegen tuin ligt perfect op de zon, een fijne plek om van zon en buiten zijn te genieten.
Het huis heeft nog veel originele jaren ’90 elementen en biedt de ideale basis voor een metamorfose voor de komende decennia.

De omgeving biedt je verder een breed scala aan voorzieningen waaronder diverse (basis)scholen, winkels en sportfaciliteiten. En wil je naar de stad Groningen, dan is de keuze reuze: met de bus, trein, fiets of de auto.
Het natuurgebied de Oosterpolder is super voor een hardlooprondje of een wandeling. Een mooi, veelzijdig natuurgebied in je achtertuin!

De indeling van het huis is als volgt:

Begane grond:
Hal/entree, meterkast, toilet met fonteintje, woonkamer met een open keuken en schuifpui. Deze woonkamer is zowel tuin- als straatgericht en heeft door de gunstige ligging een fijne lichtinval. De slaapkamer op de begane grond is ideaal als ouderslaapkamer of eventueel als werkkamer te gebruiken. De aangrenzend gelegen badkamer biedt een inrichting met een douchecabine, ligbad en twee wastafels.
Aansluitend aan de keuken tref je de bijkeuken, deze bijkeuken is ideaal voor het opstellen van de wasmachine en droger. De CV vind je er aan de wand en via deze bijkeuken is ook de L-vormige garage bereikbaar.

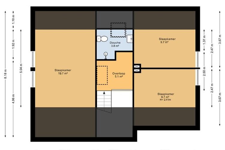
1e verdieping:
Overloop, 3 ruime slaapkamers en een tweede badkamer. Deze tweede badkamer is ingedeeld met een 2e toilet, een douche en een wastafel. Vanuit de grootste slaapkamer is er een vlizotrap naar de bergzolder.

Vlieringzolder:
Deze bergzolder is ideaal als bergruimte.


Kenmerken:
• Woonoppervlakte: 135 m²
• Perceeloppervlakte: 508 m²
• Bouwjaar: 1990
• Energielabel: A

Bijzonderheden:
• Levensloopbestendig woonhuis;
• Zonnige tuin op zuid;
• Gelegen nabij natuurgebied de Oosterpolder;
• Volledig geïsoleerd met vloer-, muur-, dak- en glasisolatie;
• Voorzien van mechanische ventilatie;
• Groepenkast v.v. 5 groepen, 2 aardlekschakelaars;
• CV ketel Remeha, bouwjaar 2005;
• 11 zonnepanelen met omvormer en optimisers voor elk paneel;
• Glasvezel en kabel TV aanwezig;
• Houtkachel in de woonkamer;
• Bekijk alvast de woningvlog voor een eerste indruk van de binnenkant!

Delen op socialmedia

Plan een bezichtiging
voor: Bosland 3

Bel ons op 050 534 66 99 of WhatsApp via 06 20223164 voor direct contact.
Of laat uw gegevens achter en wij nemen zo snel mogelijk contact met u op.

*
*
*

Lees onze voorwaarden: Cookies en Privacy